Tronc commun sujet d'examen juin 2014
star
star
star
star
star
Last updated over 3 years ago
48 questions
1
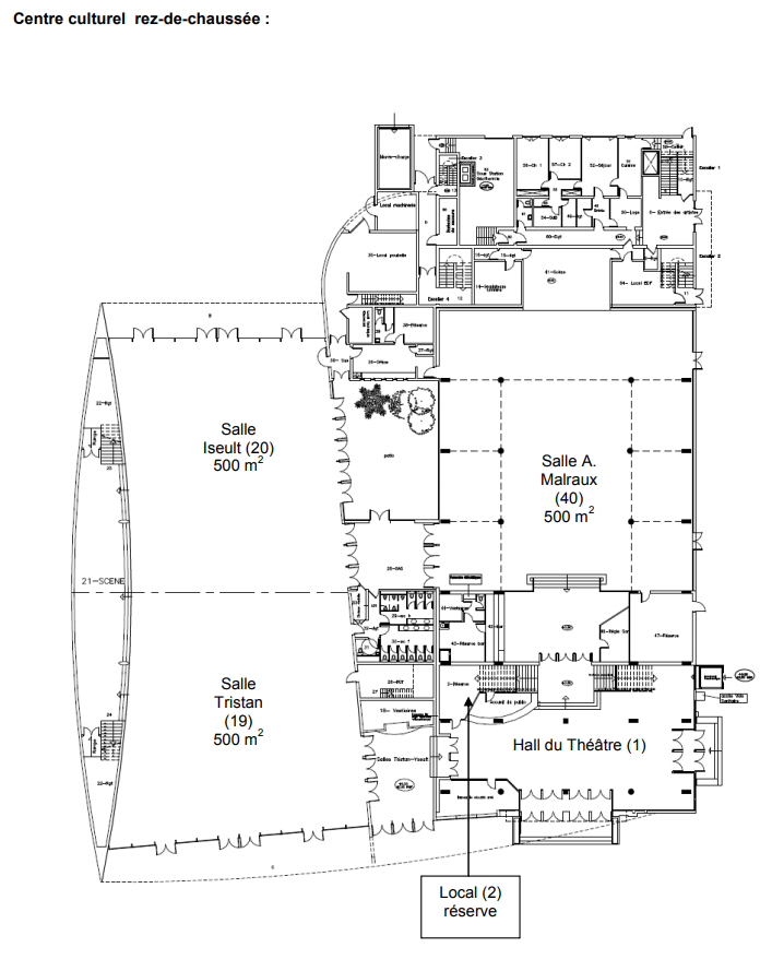
Question 2.1.1 Donner le nom de la technologie xDSL utilisé dans l’offre BIV 400 souscrite actuellement.
Question 2.1.1
Donner le nom de la technologie xDSL utilisé dans l’offre BIV 400 souscrite actuellement.
1
Question 2.1.2 Donner le rôle des filtres ADSL représentés sur le schéma de la page précédente.
Question 2.1.2
Donner le rôle des filtres ADSL représentés sur le schéma de la page précédente.
1
Question 2.1.3 Donner l’atténuation de la ligne, en vous aidant du document donné en ANNEXE N°3.
Question 2.1.3
Donner l’atténuation de la ligne, en vous aidant du document donné en ANNEXE N°3.
1
Question 2.1.4 Donner le débit maximal théorique que l’on peut atteindre sur la liaison, sachant que le DSLAM utilise la technologie ADSL2+.
Question 2.1.4
Donner le débit maximal théorique que l’on peut atteindre sur la liaison, sachant que le DSLAM utilise la technologie ADSL2+.
1
Question 2.1.5 Donner, en vous aidant de l’ANNEXE N°4, le débit utile d’un lien T0 pour un accès de base permettant d'assurer les échanges voix et données, conformément à la normalisation RNIS.
Question 2.1.5
Donner, en vous aidant de l’ANNEXE N°4, le débit utile d’un lien T0 pour un accès de base permettant d'assurer les échanges voix et données, conformément à la normalisation RNIS.
1
Question 2.1.6Déduire, en fonction des débits relevés, s’il est possible d’émettre les 4 communications voix en simultanées depuis le centre culturel.
Question 2.1.6
Déduire, en fonction des débits relevés, s’il est possible d’émettre les 4 communications voix en simultanées depuis le centre culturel.
1
Question 2.1.7 Choisir, en vous aidant du tableau de l'ANNEXE N°2, l'offre BIV adaptée, sachant que les besoins en "données" exigent une connexion à 4 Mbit/s.
Question 2.1.7
Choisir, en vous aidant du tableau de l'ANNEXE N°2, l'offre BIV adaptée, sachant que les besoins en "données" exigent une connexion à 4 Mbit/s.
1
Question 2.1.8 Citer un avantage d'une connexion SDSL par rapport à une connexion ADSL.
Question 2.1.8
Citer un avantage d'une connexion SDSL par rapport à une connexion ADSL.
1
Question 2.2.1 Compléter le tableau de l’installation électrique prévue par la norme NF C15-100 pour les appareils suivants (Voir ANNEXE N°5).
Question 2.2.1 Compléter le tableau de l’installation électrique prévue par la norme NF C15-100 pour les appareils suivants (Voir ANNEXE N°5).
1
Question 2.2.2.1Donner la définition d’un contact direct
Question 2.2.2.1
Donner la définition d’un contact direct
1
Question 2.2.2.2Donner les moyens de s’en protéger.
Question 2.2.2.2
Donner les moyens de s’en protéger.
1
Question 2.2.3.1Donner la définition d’un contact indirect
Question 2.2.3.1
Donner la définition d’un contact indirect
1
Question 2.2.3.2Donner les moyens de s’en protéger.
Question 2.2.3.2
Donner les moyens de s’en protéger.
1
Question 2.2.4 Expliquer ces informations relevées sur un disjoncteur magnéto thermique différentiel : 20A/30mA :- 20A
- 30mA
Question 2.2.4
Expliquer ces informations relevées sur un disjoncteur magnéto thermique différentiel : 20A/30mA :
- 20A
- 30mA
1
Question 2.2.5 Remettre dans l’ordre les mots de la consignation : CONDAMNATION - SÉPARATION - VAT- IDENTIFICATION.
Question 2.2.5
Remettre dans l’ordre les mots de la consignation : CONDAMNATION - SÉPARATION - VAT- IDENTIFICATION.
1
Question 2.2.6 Donner le nom du protocole de communication utilisé pour le système Con@ctivity voir ANNEXE N°6.
Question 2.2.6
Donner le nom du protocole de communication utilisé pour le système Con@ctivity voir ANNEXE N°6.
1
Question 2.2.7 Donner la signification des initiales CPL puis expliquer le principe de cette transmission d’informations.
Question 2.2.7
Donner la signification des initiales CPL puis expliquer le principe de cette transmission d’informations.
1
Question 2.2.8 Dessiner les connexions des bornes 1 à 5 entres elles pour un raccordement de la table sur une alimentation 230 V monophasé. Puis dessiner les liaisons entre l’alimentation (phase, neutre, terre) et le bornier (L1 à PE) en vous aidant de l’ANNEXE N°7.
Question 2.2.8
Dessiner les connexions des bornes 1 à 5 entres elles pour un raccordement de la table sur une alimentation 230 V monophasé. Puis dessiner les liaisons entre l’alimentation (phase, neutre, terre) et le bornier (L1 à PE) en vous aidant de l’ANNEXE N°7.
1
Question 2.2.9 Donner la signification des symboles ci-dessous, présents sur la table à induction.
Question 2.2.9
Donner la signification des symboles ci-dessous, présents sur la table à induction.
1
Question 2.3.1 Donner les 2 types de modules permettant l’ouverture électromagnétique des tiroirs caisses.
Question 2.3.1
Donner les 2 types de modules permettant l’ouverture électromagnétique des tiroirs caisses.
1
Question 2.3.2 Indiquer la forme du signal retenue sur le port série afin d’éviter toute ouverture intempestive du tiroir-caisse lors de la présence de pointes de tension.
Question 2.3.2
Indiquer la forme du signal retenue sur le port série afin d’éviter toute ouverture intempestive du tiroir-caisse lors de la présence de pointes de tension.
1
Question 2.3.3 Indiquer dans le tableau ci-dessous et pour chacun des 4 chronogrammes de la page suivante, si le train de signaux permet d’ouvrir le tiroir de la caisse enregistreuse. Si ce n’est pas le cas, indiquer pourquoi le signal ne permet pas l’ouverture du tiroir.
Question 2.3.3
Indiquer dans le tableau ci-dessous et pour chacun des 4 chronogrammes de la page suivante, si le train de signaux permet d’ouvrir le tiroir de la caisse enregistreuse. Si ce n’est pas le cas, indiquer pourquoi le signal ne permet pas l’ouverture du tiroir.
1
Question 2.3.4 Donner le nombre binaire correspondant au commutateur DIP réglé en usine et en déduire le caractère correspondant.
Question 2.3.4
Donner le nombre binaire correspondant au commutateur DIP réglé en usine et en déduire le caractère correspondant.
1
Question 2.3.5 Indiquer le nombre binaire généré par ce commutateur DIP, le traduire en valeur hexadécimale et en déduire le caractère d’ouverture.
Question 2.3.5
Indiquer le nombre binaire généré par ce commutateur DIP, le traduire en valeur hexadécimale et en déduire le caractère d’ouverture.
1
Question 2.4.1 Relever, à partir de l’ANNEXE N°10, le numéro correspondant à la situation étudiée.
Question 2.4.1
Relever, à partir de l’ANNEXE N°10, le numéro correspondant à la situation étudiée.
1
Question 2.4.1 Relever, à partir de l’ANNEXE N°10, le numéro correspondant à la situation étudiée.
Question 2.4.1
Relever, à partir de l’ANNEXE N°10, le numéro correspondant à la situation étudiée.
1
Question 2.4.2 Relever le nombre d’images par seconde minimum imposé pour cette situation. Justifier votre réponse.
Question 2.4.2
Relever le nombre d’images par seconde minimum imposé pour cette situation. Justifier votre réponse.
1
Question 2.4.3 La situation étudiée nous oblige à enregistrer au format vidéo 4CIF. Déterminer la résolution de l’image (en pixels) imposée par l’arrêté du 3 août 2007
Question 2.4.3
La situation étudiée nous oblige à enregistrer au format vidéo 4CIF.
Déterminer la résolution de l’image (en pixels) imposée par l’arrêté du 3 août 2007
1
Question 2.4.4 Relever le débit théorique moyen d’enregistrement des images imposé par l’arrêté du 3 août 2007.
Question 2.4.4
Relever le débit théorique moyen d’enregistrement des images imposé par l’arrêté du 3 août 2007.
1
Question 2.4.5 Le débit réel d’enregistrement de l’installation est de 0,1Mo/s pour une caméra. Calculer l’espace disque occupé par les vidéos sur le disque dur pour un archivage de 16 jours. Exprimer le résultat en Go.
Question 2.4.5
Le débit réel d’enregistrement de l’installation est de 0,1Mo/s pour une caméra.
Calculer l’espace disque occupé par les vidéos sur le disque dur pour un archivage de 16 jours. Exprimer le résultat en Go.
1
Question 2.4.6 Choisir judicieusement la référence du disque dur correspondant aux exigences de l’installation. Justifier.
Question 2.4.6
Choisir judicieusement la référence du disque dur correspondant aux exigences de l’installation. Justifier.
1
Question 2.5.1 Citer deux avantages liés à l’utilisation d’un lecteur d’affichage dynamique plutôt que d’un Mini-PC.
Question 2.5.1
Citer deux avantages liés à l’utilisation d’un lecteur d’affichage dynamique plutôt que d’un Mini-PC.
1
Question 2.5.2 On donne 1 pouce = 2,54 cm. Calculer la diagonale minimale de l’écran en pouce.
Question 2.5.2
On donne 1 pouce = 2,54 cm.
Calculer la diagonale minimale de l’écran en pouce.
1
Question 2.5.3 Calculer le coût total du matériel nécessaire à l’acquisition du matériel dédié à l’affichage en vous aidant de l’ANNEXE N°14.
Question 2.5.3
Calculer le coût total du matériel nécessaire à l’acquisition du matériel dédié à l’affichage en vous aidant de l’ANNEXE N°14.
1
Question 2.5.4 Compléter le tableau suivant en indiquant la technologie de rétroéclairage pour un écran LCD parmi les 3 technologies suivantes : Rétroéclairage tubes néon CCFL, Rétroéclairage LED Edge, Rétroéclairage Full LED.
Question 2.5.4
Compléter le tableau suivant en indiquant la technologie de rétroéclairage pour un écran LCD parmi les 3 technologies suivantes : Rétroéclairage tubes néon CCFL, Rétroéclairage LED Edge, Rétroéclairage Full LED.
1
Question 2.5.5 Proposer un choix technologique de l’écran (marque et référence) qui soit compatible avec les exigences définies dans le cahier des charges. Légende : Pour la rangée « Choix », vous indiquerez OUI si l’écran est valide ou NON s’il ne l’est pas.
Question 2.5.5
Proposer un choix technologique de l’écran (marque et référence) qui soit compatible avec les exigences définies dans le cahier des charges.
Légende : Pour la rangée « Choix », vous indiquerez OUI si l’écran est valide ou NON s’il ne l’est pas.
1
Question 2.5.6 Compléter le tableau suivant afin d’identifier les connecteurs audio et vidéo du téléviseur.
Question 2.5.6
Compléter le tableau suivant afin d’identifier les connecteurs audio et vidéo du téléviseur.
1
Question 2.5.7 Donner le nom du connecteur, présent en sortie du lecteur multimédia et en entrée du moniteur, qu’il faut utiliser pour avoir une définition d’affichage HD 1080.
Question 2.5.7
Donner le nom du connecteur, présent en sortie du lecteur multimédia et en entrée du moniteur, qu’il faut utiliser pour avoir une définition d’affichage HD 1080.
1
Question 2.5.8 Raccorder, sur le schéma le téléviseur au player pour avoir une définition d’affichage HD1080.
Question 2.5.8
Raccorder, sur le schéma le téléviseur au player pour avoir une définition d’affichage HD1080.
1
Question 2.6.1 Cocher les types de projecteurs traditionnels équipant le théâtre d'après l’ANNEXE N°15.
Question 2.6.1
Cocher les types de projecteurs traditionnels équipant le théâtre d'après l’ANNEXE N°15.
1
Question 2.6.2 Les éclairages sont alimentés par des gradateurs. Énoncer le rôle d'un gradateur.
Question 2.6.2
Les éclairages sont alimentés par des gradateurs.
Énoncer le rôle d'un gradateur.
1
Question 2.6.3 Noter la puissance d'un projecteur PAR64 en vous aidant de l'ANNEXE N°16.
Question 2.6.3
Noter la puissance d'un projecteur PAR64 en vous aidant de l'ANNEXE N°16.
1
Question 2.6.4 Un canal de gradateur est protégé par un disjoncteur divisionnaire de 16A sous 230V. Un PAR64 est alimenté par le secteur. Calculer s'il est possible de connecter 3 PAR64 sur un même canal.
Question 2.6.4
Un canal de gradateur est protégé par un disjoncteur divisionnaire de 16A sous 230V. Un PAR64 est alimenté par le secteur.
Calculer s'il est possible de connecter 3 PAR64 sur un même canal.
1
Question 2.6.5 Rechercher l'impédance du filtre proposé et celle des enceintes dans les ANNEXES N°17 et 18.
Question 2.6.5
Rechercher l'impédance du filtre proposé et celle des enceintes dans les ANNEXES N°17 et 18.
1
Question 2.6.6 Surligner en vert, sur le diagramme la réponse en fréquence du filtre passe haut.
Question 2.6.6
Surligner en vert, sur le diagramme la réponse en fréquence du filtre passe haut.
1
Question 2.6.7 Déterminer la fréquence de séparation (crossover frequency) du filtre défectueux. Vous la ferez apparaître sur le diagramme ci-dessus.
Question 2.6.7
Déterminer la fréquence de séparation (crossover frequency) du filtre défectueux. Vous la ferez apparaître sur le diagramme ci-dessus.
1
Question 2.6.8 Donner la pente de l’atténuation du filtre passe haut en dB/dec.
Question 2.6.8
Donner la pente de l’atténuation du filtre passe haut en dB/dec.
1
Question 2.6.9 On se propose de remplacer le filtre défectueux par le filtre proposé en ANNEXE N°18.Justifier si le filtre de remplacement est adapté pour la réparation.
Question 2.6.9
On se propose de remplacer le filtre défectueux par le filtre proposé en ANNEXE N°18.
Justifier si le filtre de remplacement est adapté pour la réparation.










